「今月の電気代いくらだった?」
「35,000円も行っちゃった」
「うちなんて42,000円よ!」
そんな会話が増えましたね。最強寒波と暖房費高騰のダブルパンチ。
特に賃貸アパート・貸家にお住いで、電気とプロパンガスの請求額を二度見しちゃった…いや、目ん玉飛び出そうになった人もいるのでは?
そこに追い打ちをかけるように水道管凍結とか…。
「賃貸暮らしはやめて、もう少し性能のいい家に引っ越そうかな?」
そんなあなたにお知らせです。
冬暖かく・夏涼しい家へ断熱リノベーションした中古住宅(一戸建て)を販売します。光熱費が節約できますよ。
足の裏が冷たく、じっとしていられない家

場所は長野市青木島町大塚。
青木島小学校まで徒歩6分、廃止の是非で全国ニュースにもなった青木島遊園地の東方向にあります。
昨年、空き家の状態で売りに出ていた当物件を、弊社で買い取りました。
1987年築、一部増築ありの木造2階建て4SLDK(1階73.69㎡、2階61.74㎡)、カーポート付き・駐車3台可。
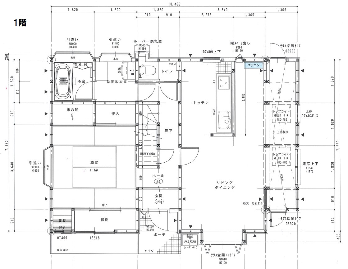
現況の間取り図と、リノベーション前の室内写真はこちらです。
大切に住まわれていたであろう綺麗な家です。しかしながら、窓が多いうえ、ほぼシングルガラスなので、とにかく冬は室内が寒い!
エアコン暖房しながら調査しているのに、フローリングが冷たすぎて靴下の足裏がジンジン…。同じ場所に1分も立ってられませんでした。
前所有者さん、この断熱性能が低い家で暖房ガンガンかけていたのでしょう。結露跡やカビもあちこちに見られました。
ちなみに、弊社の1級建築士によるインスペクション(既存住宅状況調査)も実施済みで、この家の劣化状況はしっかりと把握しています。
家計と体に優しい家にしたい

「中古住宅をリノベーションして販売」と聞くと、「あぁCMや広告でよく見るアレね」と思うかもしれませんが、いえいえ、全然違うんです。
内外装のデザインを替えただけの物件が多く出回っている中、弊社は断熱重視のリノベーションを施してグレードアップさせます。
イメージとしては、室内を断熱材ですっぽり覆うような感じ。高性能グラスウールという、ふわふわモコモコした厚い断熱材を使います。
上述したシングルガラスの窓も、トリプルガラスの樹脂サッシへ交換します。ペアガラスじゃなく、トリプル(3重)ですよ。
断熱を強化すると、どうなるか?
冬場は、窓・壁・床下・天井から入り込む冷気を少なくできます。また、室内の暖かい空気が外へ逃げにくくなります。
夏場は逆に、外からの熱を遮断し、室内の涼しい空気を閉じ込めることができます。
結果、断熱していない家よりも、冷暖房費が大幅に節約できるというわけです。そして何より、激しい寒暖差による身体への負担を軽減できるメリットも。
血圧が気になるなら、良質な家への住み替えを検討することも必要ですよ。
主なリノベ内容
1月下旬、リノベ工事が始まりました。完成予定は4月頃です。
大きな間取り変更はしませんが、内外装はガラッと変わります。詳細が正式に決まり次第、販売広告をスタートするのでお楽しみに。
<主なリノベ内容(予定)>
- 断熱工事
- 板張りの外観へ
- 屋根など塗装
- 玄関ドア交換
- 水回り機器交換(キッチン・トイレ・洗面化粧台・ユニットバス)
- 床を無垢フローリングへ
- 建具交換
- トリプルガラス樹脂サッシへ交換(一部の窓は廃止)
- エアコン4台交換
- LED照明
解体や断熱材の充填作業が、着々と進んでいます。
順次リノベーションの様子を追記していきますので、ぜひまた当記事をチェックしに来てください!
(追記2/11)床の断熱材の充填
既存の床材を撤去し、断熱材を入れるために根太を組みました。
断熱材は、パラマウント硝子社製の「太陽SUN」という高性能グラスウール。これを隙間に合うサイズにカットし、詰め込んでいきます。
厚み90mmで一列入れてから、その上にもう一列50mm入れるので、合計140mm。床下からの冷気をブロックできますね。お肉に見えたり、トロにも見えたりして、なんか美味しそう(笑)
地面から湿気が上がって来ないよう土間シートも敷いています。
既存の天井も落とし、垂木を組みました。天井裏にも断熱材を入れる予定ですが、こちらは吹き込み用の綿菓子のようなものを注入します。
新しいサッシに交換するため、古い窓は全て撤去済みなので、現場はかなり寒いです。「作業してても体が温まらない…」と大工さん。頑張ってください!
(追記2/13)販売スタートしました
販売広告を始めました。
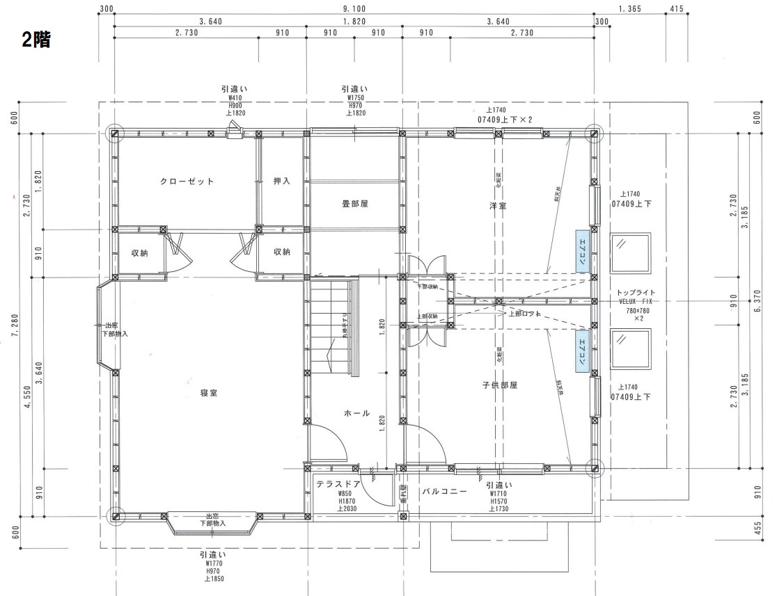
簡易的な間取り図ですが、完成予定はこんな感じです。
.jpg)
1階のもともと和室だった部屋は洋室8帖に。床の間&押し入れのスペースをウォークインクローゼットにし、収納力をアップ。
2階の和室3畳だったスペースは、洋室ワークスペースへ変更します。そのほかは、2階は全体的に既存の内装を残す方向ですので、購入者さんの手で自由にDIYしていただきたい。
新築より安く、フツーの中古より、ずっと快適。
仮に長野市青木島で土地から買って、同じ規模の家を新築するなら4,500万円は超えることでしょう。
建築資材の価格も月々の光熱費も上がっている今だからこそ、ランニングコストも意識した省エネの家をご提案したいです。
(追記2/18)洗面所・浴室の解体
1階廊下~トイレ~洗面所~浴室と解体が進み、スケルトンになっていきます。床や壁を取っ払ってみると、全体的な空間が狭く感じるから不思議です。
風呂・洗面化粧台・キッチンはTOTO製を予定。トイレはPanasonic製のタンクレスへ。
エクセルシャノン製の高性能トリプルガラス樹脂サッシも入荷しました。特殊な金属膜をコーティングしたガラスを使っており、ガラスとガラスの間には空気より熱を伝えにくいガスを封入。これにより「冷気を入れず・暖気を逃がさず」の空間を目指します。
天井裏に気密シートを張り、テープで「気流止め」することで冷気が隙間を流れないようにしています。
屋根の塗装も始まり、現場は職人さんの出入りで賑やかになってきました。
(追記3/2)外壁にフックいっぱい
外壁に断熱材を外張りしていくためのフックが、等間隔にビス止めされています。「KMブラケット」と言いまして、ポリカーボネートで高強度&劣化しにくい素材です。
ここに高性能グラスウールを(隙間なく)引っ掛けたら、その上にタイベックシート(透湿防水シート)を張っていきます。
新しい樹脂サッシを取り付けるための窓枠も追加。
床と天井に点検口を設けるのですが、ここから冷気や熱気が室内に侵入して来ないよう、点検口の蓋も断熱用の分厚いものを使います。
徹底的に断熱、断熱、断熱…!
(追記3/18)外壁に断熱材を付加
KMブラケットにグラスウール(厚さ105mm)を引っ掛けた様子が↓こちらです。
Twitterでも画像をアップしたところ「一瞬お肉に見えた」とコメント頂きました(笑)
閲覧ありがとうございます!

その後、タイベックシートを張って覆いました。
「透湿防水シート」の役割は、外からの雨漏りを防ぎつつ、家の中の湿気を外に逃がすこと。水分は木造住宅にとって大敵ですからね。

ガラス板3層のエクセルシャノン樹脂サッシも入り始めました。
撤去した既存窓よりもサイズが小さくなった分、隙間になったところにもグラスウールを詰め込みます。

断熱性能を高めるには、グラスウールを付加しただけでは足りませんし、トリプルガラス窓に交換しただけでも足りません。
それらを融合させて初めて効果が発揮されるのです!
(追記5/13)天井裏に雪が積もった?!
現場大工さんの諸事情により工事がストップ…いや完全に止まっていたわけではないので、少しずつ進んでいました。
当初の完成予定より2カ月ほど遅れることになりました。現場ではリアルタイムで実に様々なことが起こるので、致し方なし…。
完成後に内覧を希望されているお客様、申し訳ございません。もうしばらくお待ちください。
各開口部に樹脂サッシが取り付けられ、室内側の壁にもグラスウールが埋め込まれました。
天井の断熱については、壁とは異なる工法を採用。ホースでグラスウールを吹き込みながら積層させていくブローイング工法と呼ばれるものです。
画像をご覧ください。ふわふわの雪が積もったようになっているのが断熱材です。
さらに居室側の天井にも気密シートを張り、隙間風を通さないようテーピングしている点も要チェック。
これから工事スピードアップだ!
(追記6/8)外壁はシブい「木板張り」

水回り機器が入り始め、内装工事も本格化。壁に石膏ボードを張り、表面の凹凸を平らにするためパテ埋めしていきます。
注目の一つは、木板張りの外壁です。まだ足場が掛かっているのでフルオープンではありませんが、とってもウッディな感じでしょう?
これは飫肥杉(オビスギ)という、耐久・耐水性に優れている木材。防腐剤ACQを加圧注入してるので長持ちします。
年数を重ねると変色していくので、その経年変化を“味わい”として楽しめる方にお勧めです。
この界隈に外壁板張りの家はないので、とても目を引きます。存在感もそれなり。
工事はいよいよラストスパートへ!
(追記6/25)ついに完成しました!

色々な試みの詰まったリノベ工事が、ついに完了しました!
あらためて、リフォーム前の画像と見比べてみてください。
1階の床は、節が特徴的なパイン無垢フローリング。やわらかい素材で、素足で歩いたときの肌触り感が良いんですよ。ぜひ内覧に来て、触れてみていただきたく。
2階の床やクロス、建具などは(ほぼ)既存のまま。DIYを楽しみたい方、好みの空間にカスタマイズしたい方のために自由度を持たせました。
もちろん、断熱性能としては格段にアップしているのでご安心を。
完成にホッとしたのも束の間、販売担当の私としては、これからが本当の勝負どころです。
「建築」と「不動産」の融合…どんな結果になりますか―。
(追記2025/6/1)御礼
その後、買主様が見つかり、お引渡しまで完了しました。
弊社としては、また長野市内の中古市場においては、かなり実験的な物件となりましが、買主様に気に入っていただけて大変嬉しい限りです。ありがとうございました。
今回の販売で手応えを感じた点、逆に課題が明確になった点、いろいろと勉強になりました。
いつかまた、第二弾のReborn中古住宅がリリースできるよう、研究を重ねていきたいという思いを新たにした次第です。
































































































































